Redefining the showroom experience for a high-end fine jewelry retail client, creating a space that exudes warmth and sophistication with luxurious finishes and bespoke fixtures, perfect for showcasing their collections.

As a team, we brought to life over 30 showrooms across the nation, at outdoor shopping centers and indoor mall locations. Together, we tackled challenges from conceptual design through construction administration — programming small & narrow spaces, designing with unusual existing conditions, and translating intricate design concept to tangible elements.

Role: Project Architectural Designer, Architectural Drawing Support

Location: 10 projects = 4 in California & along the East Coast

Year: 2021-2024

All Images & Drawings Courtesy of MG2

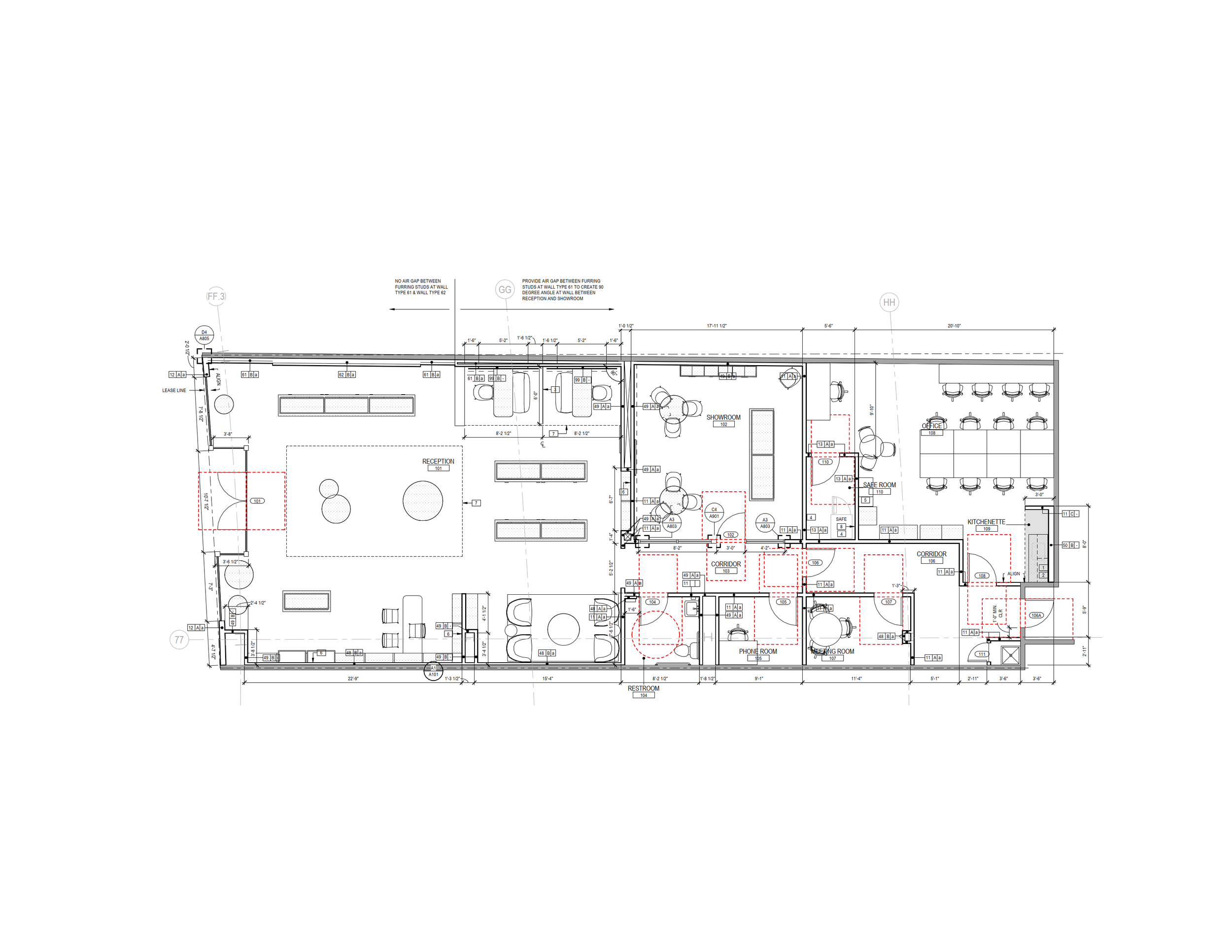
Showroom Plans & Details

MALL CONCEPT FLOOR PLAN

TRAY CEILING COVE LIGHT DETAIL

TILE TO STOREFRONT TRANSITION DETAIL

ACOUSTIC CEILING TILE SOFFIT TRANSITION DETAIL

Continuing with my experience in Retail Development, I had the opportunity to assist other project teams and clients, below is some of the work..

Next
Next

FOOD & BEVERAGE