Promiment online retailers and wholesale sellers seek to develop large scale facilities for their industrial level needs.

From multi-level distribution centers to half-million squarefoot fulfillment centers, I worked closely with design teams to assist in the production and documentation of office cores and employee-designated areas within the space, and contributed to managing construction administration for such projects.

Role: Architectural Drawing Support, Construction Administration Support

Location: Honolulu, HI, Los Angeles, CA & Sumner, WA

Year: 2020-2021

All Images & Drawings Courtesy of MG2

Plans & Details

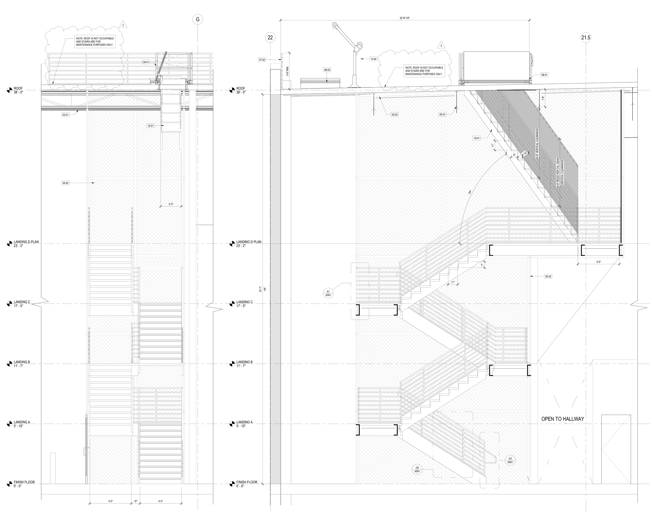
STAIR RAIL DETAILS

ROOF ACCESS STAIR ENCLOSURE & HATCH STAIR

Previous
Previous

FOOD & BEVERAGE